Η ανέγερση ψηλών κτηρίων αποτελεί την τάση των τελευταίων χρόνων στην Κύπρο με ολοένα και περισσότερες εταιρείες ανάπτυξης γης να ενδιαφέρονται για την ανέγερση πολυώροφων οικιστικών αναπτύξεων οι οποίες αναμένεται να παρέχουν στους ένοικους τους υπηρεσίες ξενοδοχείων. Το InBusinessNews παρουσιάζει τις νέες οικιστικές αναπτύξεις που αναμένεται να ανεγερθούν τα επόμενα χρόνια και για τα οποία είτε έχει δώσει τη συγκατάθεση του το Τμήμα Περιβάλλοντος είτε βρίσκεται ενώπιον του η σχετική περιβαλλοντική μελέτη.
Διαβάστε ακόμα:
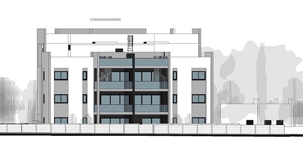
Tower 66
Τη συγκατάθεση του έδωσε το 2019 το Τμήμα Περιβάλλοντος στην ανέγερση νέου οικιστικού κτηρίου 17 ορόφων με 96 διαμερίσματα στο παραλιακό μέτωπο της Λεμεσού από την εταιρεία Nikhi Group. Σύμφωνα με την μελέτη εκτίμησης επιπτώσεων στο περιβάλλον που κατατέθηκε ενώπιον του Τμήματος Περιβάλλοντος, το ύψους του κτηρίου που θα φέρει την επωνυμία TOWER 66 θα φθάνει τα 81 μέτρα. Το προτεινόμενο έργο χωροθετείται εντός των διοικητικών ορίων της κοινότητας Αγίου Τύχωνα.
Συγκεκριμένα, το έργο αφορά την κατασκευή και λειτουργία πολυόροφου κτηρίου 17 ορόφων με 96 διαμερίσματα (ύψος 81μ.).
Soho Resort
Πράσινο έλαβε και η αίτηση της κοινοπραξίας Meridoro – Celicandia για την ανέγερση του Soho Resort. Πρόκειται για μικτή οικιστική – εμπορική ανάπτυξη, η οποία θα αποτελείται από δύο πολυώροφους πύργους 14 και 15 ορόφων (και επιπλέον κήπος οροφής στον κάθε πύργο). Θα διαθέτει συνολικά 118 οικιστικές μονάδες 2-4 υπνοδωματίων και από είκοσι πολυτελείς τουριστικές επαύλεις ενός ορόφου και ενός υπογείου.
Το ύψος του ψηλότερου εκ των δύο πύργων θα ανέρχεται στα 70,90 μέτρα από το επίπεδο του ισογείου.
Larnaca Tower
Στο Τμήμα Περιβάλλοντος βρίσκεται η τελική περιβαλλοντική έκθεση που υπέβαλε η Lanomex Co Ltd για την ανέγερση των δύο εντυπωσιακών πύργων Larnaca Tower, στην περιοχή των Φοινικούδων στη Λάρνακα. Ένα από τα δύο πολυώροφα κτήρια του γνωστού πια έργου θα λειτουργεί ως ξενοδοχειακή μονάδα, ενώ το άλλο ως κτήριο 30 ορόφων με πολυτελή διαμερίσματα και γραφεία. Η έκθεση υποβλήθηκε για την εταιρεία του Ρώσου μεγιστάνα, Νικολάι Ποταπένκο, ο οποίος τελικά, παρά τις αντιδράσεις, επέμεινε και στήριξε το έργο, το οποίο αναμένεται να αναβαθμίσει ριζικά την εικόνα της παραλιακής Λάρνακας.
Οι δύο μεμονωμένες αναπτύξεις που θα συναποτελούν το Larnaca Tower είναι ένα ξενοδοχείο και ένα κτήριο 30 ορόφων. Το πολυτελές ξενοδοχείο πέντε αστέρων και δέκα ορόφων θα περιλαμβάνει, μεταξύ άλλων, 100 δωμάτια, δύο πισίνες, εστιατόρια και γυμναστήριο. Το 30ώροφο κτήριο δίπλα του θα περιλαμβάνει πολυτελή διαμερίσματα, γραφεία, δύο επίπεδα χώρων στάθμευσης, δύο πισίνες και κέντρο ευεξίας, γυμναστήριο, εστιατόρια και bar, καθώς επίσης αίθουσα τελετών και δεξιώσεων.
Orion
Τη συγκατάθεση του έδωσε το Τμήμα Περιβάλλοντος για την κατασκευή δυο πύργων ύψους 64 μέτρων, οι οποίοι θα περιλαμβάνουν διαμερίσματα για οικιστικούς σκοπούς, με την ονομασία «Orion» στην Έγκωμη. Το κόστος του έργου, το οποίο είναι ιδιοκτησίας της εταιρείας «VASSOS MARKIDES ESTATES LTD» και θα κατασκευαστεί δίπλα από το ξενοδοχείο Hilton Park, εκτιμάται ότι θα ανέλθει στα €30 εκατ.
Το «Orion» περιλαμβάνει δύο μοντέρνους και πολυτελείς οικιστικούς πύργους με υπόγειο ιδιωτικό χώρο στάθμευσης. Η ανάπτυξη θα έχει ύψος 64 μέτρα και θα προσφέρει ανεμπόδιστη θέα 180 μοιρών, με ιδιωτική πισίνα και απομονωμένους κήπους. Θα αποτελείται από διαμερίσματα ενός υπνοδωματίου, δύο υπνοδωματίων, τριών υπνοδωματίων και ρετιρέ. Το έργο θα συμπεριλαμβάνει επίσης πισίνα, γυμναστήριο / σάουνα και υπηρεσίες θυρωρού.
Το Τμήμα Περιβάλλοντος έδωσε τη συγκατάθεση του για την ανέγερση ακόμη ενός πολυτελούς οικιστικού πύργου στη Λεμεσό. Το προτεινόμενο έργο «Poseidon», το οποίο αναμένεται να ανεγερθεί στον Άγιο Τύχωνα, περιλαμβάνει ένα μοντέρνο και πολυτελές οικιστικό πύργο με υπόγειο ιδιωτικό χώρο στάθμευσης. Το κτήριο θα έχει ύψος 42,5 περίπου μέτρα και θα συμπεριλαμβάνει ιδιωτική πισίνα και ιδιωτικό γυμναστήριο. Θα αποτελείται από συνολικά 13 διαμερίσματα δύο υπνοδωματίων, τριών υπνοδωματίων και ρετιρέ/μεζονέτα, σχεδιασμένα σύμφωνα με προδιαγραφές υψηλού επιπέδου. Το εκτιμώμενο κόστος του έργου ανέρχεται στα €4,5 εκατ. περίπου. Το έργο ανήκει στην εταιρεία Vassos Markides Estates Ltd.
Infinity Residences
Την κατασκευή και λειτουργία της οικιστικής ανάπτυξης με την ονομασία «Infinity Residences», στον Δήμο Λάρνακας, προγραμματίζει η Rinon Investment. Σύμφωνα με την περιβαλλοντική μελέτη, το έργο θα αποτελείται 11 ορόφους και έναν υπόγειο χώρο και θα περιλαμβάνει 27 διαμερίσματα. Πιο συγκεκριμένα, θα υπάρχουν 5 διαμερίσματα ενός υπνοδωματίου, 12 διαμερίσματα δύο υπνοδωματίων και 10 διαμερίσματα τριών υπνοδωματίων. Ταυτόχρονα στο έργο θα υπάρχει γυμναστήριο, roof garden, 31 χώρους στάθμευσης στο υπόγειο, τρεις χώρους στάθμευσης για ΑμΕΑ, αλλά και έξι χώρους στάθμευσης για ποδήλατα στο ισόγειο.
Zaria Development
Η εταιρεία Anolia Holdings LTD προγραμματίζει την κατασκευή και λειτουργία της οικιστικής τουριστικής ανάπτυξης«Zaria Development» στην Κοινότητα Πύργου, στην επαρχία Λεμεσού. Σύμφωνα με την περιβαλλοντική μελέτη το προτεινόμενο έργο αποτελείται από 2 οικιστικά κτίρια (15 και 13 ορόφων) 75 διαμερισμάτων συνολικά, τα οποία διαθέτουν εσωτερική και εξωτερική κολυμβητική δεξαμενή, παιδότοπους, γυμναστήριο και χώρους πρασίνου. Συγκεκριμένα οι κτιριακές εγκαταστάσεις έχουν τα ακόλουθα χαρακτηριστικά:
Block Α (Δυτικό κτίριο), το οποίο διαθέτει 41 διαμερίσματα με 15 οικιστικούς ορόφους. Το ύψος του κτιρίου είναι 76m από τη βάση του ισογείου.
ΒlockΒ (Ανατολικό κτίριο), το οποίο διαθέτει34 διαμερίσματα με 13 οικιστικούς ορόφους. Το ύψος του κτιρίου είναι 68m από τη βάση του ισογείου.
Golden Mile
Νέα οικιστική ανάπτυξη στον Δήμο Γερμασόγειας προγραμματίζει η εταιρεία Roumero Investments, ανάπτυξη η οποία θα περιλαμβάνει την κατασκευή και λειτουργία δύο οικιστικών κτηρίων με κολυμβητική δεξαμενή, δημόσιου και ιδιωτικού χώρου πρασίνου και ιδιωτικού χώρου στάθμευσης. Σύμφωνα με την Μελέτη Εκτίμησης των Επιπτώσεων στο Περιβάλλον που κατατέθηκε στο Τμήμα Περιβάλλοντος η οικιστική ανάπτυξη θα φέρει την ονομασία «GOLDENMILE». Το προτεινόμενο έργο αφορά την κατασκευή και λειτουργία δύο οικιστικών κτηρίων (9 και 4ων ορόφων) που αποτελούνται συνολικά από 34 διαμερίσματα, 53 χώρους στάθμευσης (4 χώρους για ΑμΕΑ) και εξωτερική κολυμβητική δεξαμενή.
Το κτήριο “BlockA” αποτελείται από 9 ορόφους (συνολικό ύψος 44,85 m) και περιλαμβάνει 26 διαμερίσματα (8 διαμερίσματα ενός υπνοδωματίου,8διαμερίσματα δυο υπνοδωματίων και 10διαμερίσματα τριών υπνοδωματίων), κήπο στην οροφή, χώρους αναμονής, καταστήματα και μηχανοστάσιο. Το κτήριο “BlockΒ” αποτελείται από 4 ορόφους (συνολικό ύψος 25,6 m) και περιλαμβάνει 8 διαμερίσματα τριών υπνοδωματίων.
Habitat
Δύο νέα πολυώροφα κτίρια οικιστικών διαμερισμάτων με την ονομασία Habitat ιδιοκτησίας της Quality Group στο δήμο Λάρνακας. Σύμφωνα με την περιβαλλοντική μελέτη τα κατασκευαστικά έργα θα ολοκληρωθούν σε 18 μήνες από την έναρξη τους, ενώ το κόστος υπολογίζεται στα €25 εκατ. Το κτήριο Α αποτελείται από 10 ορόφους συνολικού ύψους 41 μέτρων και το κτήριο Β αποτελείται από 12 ορόφους συνολικού ύψους 52 μέτρων.
Εντεκαόροφο κτήριο οικιστικών διαμερισμάτων με την επωνυμία Best Western Marina στη Λάρνακα αναμένεται να παραδοθεί τον Οκτώβριο του 2020. Πρόκειται για project το οποίο με βάση τη μελέτη εκτίμησης επιπτώσεων στο περιβάλλον θα εφάπτεται της Λεωφόρου Αρχιεπισκόπου Μακαρίου Γ. Το έργο θα κατασκευαστεί σε τεμάχιο με εμβαδόν 759,000 τ.μ. και θα έχει δομήσιμο εμβαδόν περίπου 2,522 τετραγωνικών μέτρων. Το κόστος κατασκευής του έργου έχει εκτιμηθεί γύρω στα €10 εκατ. ενώ το κτήριο θα έχει ύψος 48 μέτρων. Στην οροφή του κτηρίου προτείνεται η δημιουργία πισίνας και μπαρ.
Platinum Tower
Ενώπιον του Τμήματος Περιβάλλοντος κατατέθηκε Μελέτη Εκτίμησης Επιπτώσεων στο Περιβάλλον που αφορά την κατασκευή και λειτουργία της ανάπτυξης «PlatinumPlaza» στον Άγιο Αθανάσιο, στην Λεμεσό. Η ανάπτυξη περιλαμβάνει ένα 12όροφο κτήριο με γραφεία, δημόσιο χώρο πρασίνου, εμπορικές χρήσεις, χώρους στάθμευσης και αποθήκευσης και δημόσιο πεζόδρομο. Οι κατασκευαστικές εργασίες του Έργου αναμένεται να ξεκινήσουν τέλη του 2019 και να διαπεραιωθούν μέχρι το 2022. Ο Κύριος του Έργου είναι η εταιρεία «5Q Development Ltd» και το κόστος κατασκευής του έργου εκτιμάται σε περίπου €6.000.000.
Το προτεινόμενο κτήριο, το οποίο θα εκτείνεται σε ύψος 120 μέτρων, περίπου, θα περιλαμβάνει 48 γραφειακές μονάδες, 4 εμπορικές μονάδες και κήπο οροφής.
Sunset Gardens
Ενώπιον του Τμήματος Περιβάλλοντος βρίσκεται η αίτηση για τη δημιουργία της νέας οικιστικής ανάπτυξης «Sunset Gardens» στη διοικητική περιοχή Τσερκέζοι (αλλιώς γνωστή και ως Τσερκέζ Τσιφλίκ), στη Λεμεσό. Το προτεινόμενο έργο ιδιοκτησίας της«Citrus Gardens Development LTD» αφορά περιφραγμένη οικιστική ανάπτυξη, η οποία θα είναι πλούσια σε εγκαταστάσεις. Συγκεκριμένα, θα αποτελείται από χαμηλές πολυκατοικίες με μέγιστο αριθμό ορόφων τους τέσσερις, οι οποίες θα περιλαμβάνουν συνολικά 310 διαμερίσματα, ενός, δύο και τριών υπνοδωματίων, που θα διαθέτουν εξωτερικό καλυμμένο χώρο στάθμευσης και θα έχουν σχεδιαστεί σύμφωνα με προδιαγραφές υψηλού επιπέδου.

Διαβάστε ακόμα:
Και εγένετο Philips University!
Θ. Χρονόπουλος: Epic-η αλλαγή στο σκηνικό των τηλεπικοινωνιών
Tower 66

Τη συγκατάθεση του έδωσε το 2019 το Τμήμα Περιβάλλοντος στην ανέγερση νέου οικιστικού κτηρίου 17 ορόφων με 96 διαμερίσματα στο παραλιακό μέτωπο της Λεμεσού από την εταιρεία Nikhi Group. Σύμφωνα με την μελέτη εκτίμησης επιπτώσεων στο περιβάλλον που κατατέθηκε ενώπιον του Τμήματος Περιβάλλοντος, το ύψους του κτηρίου που θα φέρει την επωνυμία TOWER 66 θα φθάνει τα 81 μέτρα. Το προτεινόμενο έργο χωροθετείται εντός των διοικητικών ορίων της κοινότητας Αγίου Τύχωνα.
Συγκεκριμένα, το έργο αφορά την κατασκευή και λειτουργία πολυόροφου κτηρίου 17 ορόφων με 96 διαμερίσματα (ύψος 81μ.).
Soho Resort

Πράσινο έλαβε και η αίτηση της κοινοπραξίας Meridoro – Celicandia για την ανέγερση του Soho Resort. Πρόκειται για μικτή οικιστική – εμπορική ανάπτυξη, η οποία θα αποτελείται από δύο πολυώροφους πύργους 14 και 15 ορόφων (και επιπλέον κήπος οροφής στον κάθε πύργο). Θα διαθέτει συνολικά 118 οικιστικές μονάδες 2-4 υπνοδωματίων και από είκοσι πολυτελείς τουριστικές επαύλεις ενός ορόφου και ενός υπογείου.
Το ύψος του ψηλότερου εκ των δύο πύργων θα ανέρχεται στα 70,90 μέτρα από το επίπεδο του ισογείου.
Larnaca Tower

Στο Τμήμα Περιβάλλοντος βρίσκεται η τελική περιβαλλοντική έκθεση που υπέβαλε η Lanomex Co Ltd για την ανέγερση των δύο εντυπωσιακών πύργων Larnaca Tower, στην περιοχή των Φοινικούδων στη Λάρνακα. Ένα από τα δύο πολυώροφα κτήρια του γνωστού πια έργου θα λειτουργεί ως ξενοδοχειακή μονάδα, ενώ το άλλο ως κτήριο 30 ορόφων με πολυτελή διαμερίσματα και γραφεία. Η έκθεση υποβλήθηκε για την εταιρεία του Ρώσου μεγιστάνα, Νικολάι Ποταπένκο, ο οποίος τελικά, παρά τις αντιδράσεις, επέμεινε και στήριξε το έργο, το οποίο αναμένεται να αναβαθμίσει ριζικά την εικόνα της παραλιακής Λάρνακας.
Οι δύο μεμονωμένες αναπτύξεις που θα συναποτελούν το Larnaca Tower είναι ένα ξενοδοχείο και ένα κτήριο 30 ορόφων. Το πολυτελές ξενοδοχείο πέντε αστέρων και δέκα ορόφων θα περιλαμβάνει, μεταξύ άλλων, 100 δωμάτια, δύο πισίνες, εστιατόρια και γυμναστήριο. Το 30ώροφο κτήριο δίπλα του θα περιλαμβάνει πολυτελή διαμερίσματα, γραφεία, δύο επίπεδα χώρων στάθμευσης, δύο πισίνες και κέντρο ευεξίας, γυμναστήριο, εστιατόρια και bar, καθώς επίσης αίθουσα τελετών και δεξιώσεων.
Orion

Τη συγκατάθεση του έδωσε το Τμήμα Περιβάλλοντος για την κατασκευή δυο πύργων ύψους 64 μέτρων, οι οποίοι θα περιλαμβάνουν διαμερίσματα για οικιστικούς σκοπούς, με την ονομασία «Orion» στην Έγκωμη. Το κόστος του έργου, το οποίο είναι ιδιοκτησίας της εταιρείας «VASSOS MARKIDES ESTATES LTD» και θα κατασκευαστεί δίπλα από το ξενοδοχείο Hilton Park, εκτιμάται ότι θα ανέλθει στα €30 εκατ.
Το «Orion» περιλαμβάνει δύο μοντέρνους και πολυτελείς οικιστικούς πύργους με υπόγειο ιδιωτικό χώρο στάθμευσης. Η ανάπτυξη θα έχει ύψος 64 μέτρα και θα προσφέρει ανεμπόδιστη θέα 180 μοιρών, με ιδιωτική πισίνα και απομονωμένους κήπους. Θα αποτελείται από διαμερίσματα ενός υπνοδωματίου, δύο υπνοδωματίων, τριών υπνοδωματίων και ρετιρέ. Το έργο θα συμπεριλαμβάνει επίσης πισίνα, γυμναστήριο / σάουνα και υπηρεσίες θυρωρού.
Poseidon

Το Τμήμα Περιβάλλοντος έδωσε τη συγκατάθεση του για την ανέγερση ακόμη ενός πολυτελούς οικιστικού πύργου στη Λεμεσό. Το προτεινόμενο έργο «Poseidon», το οποίο αναμένεται να ανεγερθεί στον Άγιο Τύχωνα, περιλαμβάνει ένα μοντέρνο και πολυτελές οικιστικό πύργο με υπόγειο ιδιωτικό χώρο στάθμευσης. Το κτήριο θα έχει ύψος 42,5 περίπου μέτρα και θα συμπεριλαμβάνει ιδιωτική πισίνα και ιδιωτικό γυμναστήριο. Θα αποτελείται από συνολικά 13 διαμερίσματα δύο υπνοδωματίων, τριών υπνοδωματίων και ρετιρέ/μεζονέτα, σχεδιασμένα σύμφωνα με προδιαγραφές υψηλού επιπέδου. Το εκτιμώμενο κόστος του έργου ανέρχεται στα €4,5 εκατ. περίπου. Το έργο ανήκει στην εταιρεία Vassos Markides Estates Ltd.
Infinity Residences

Την κατασκευή και λειτουργία της οικιστικής ανάπτυξης με την ονομασία «Infinity Residences», στον Δήμο Λάρνακας, προγραμματίζει η Rinon Investment. Σύμφωνα με την περιβαλλοντική μελέτη, το έργο θα αποτελείται 11 ορόφους και έναν υπόγειο χώρο και θα περιλαμβάνει 27 διαμερίσματα. Πιο συγκεκριμένα, θα υπάρχουν 5 διαμερίσματα ενός υπνοδωματίου, 12 διαμερίσματα δύο υπνοδωματίων και 10 διαμερίσματα τριών υπνοδωματίων. Ταυτόχρονα στο έργο θα υπάρχει γυμναστήριο, roof garden, 31 χώρους στάθμευσης στο υπόγειο, τρεις χώρους στάθμευσης για ΑμΕΑ, αλλά και έξι χώρους στάθμευσης για ποδήλατα στο ισόγειο.
Zaria Development

Η εταιρεία Anolia Holdings LTD προγραμματίζει την κατασκευή και λειτουργία της οικιστικής τουριστικής ανάπτυξης«Zaria Development» στην Κοινότητα Πύργου, στην επαρχία Λεμεσού. Σύμφωνα με την περιβαλλοντική μελέτη το προτεινόμενο έργο αποτελείται από 2 οικιστικά κτίρια (15 και 13 ορόφων) 75 διαμερισμάτων συνολικά, τα οποία διαθέτουν εσωτερική και εξωτερική κολυμβητική δεξαμενή, παιδότοπους, γυμναστήριο και χώρους πρασίνου. Συγκεκριμένα οι κτιριακές εγκαταστάσεις έχουν τα ακόλουθα χαρακτηριστικά:
Block Α (Δυτικό κτίριο), το οποίο διαθέτει 41 διαμερίσματα με 15 οικιστικούς ορόφους. Το ύψος του κτιρίου είναι 76m από τη βάση του ισογείου.
ΒlockΒ (Ανατολικό κτίριο), το οποίο διαθέτει34 διαμερίσματα με 13 οικιστικούς ορόφους. Το ύψος του κτιρίου είναι 68m από τη βάση του ισογείου.
Golden Mile

Νέα οικιστική ανάπτυξη στον Δήμο Γερμασόγειας προγραμματίζει η εταιρεία Roumero Investments, ανάπτυξη η οποία θα περιλαμβάνει την κατασκευή και λειτουργία δύο οικιστικών κτηρίων με κολυμβητική δεξαμενή, δημόσιου και ιδιωτικού χώρου πρασίνου και ιδιωτικού χώρου στάθμευσης. Σύμφωνα με την Μελέτη Εκτίμησης των Επιπτώσεων στο Περιβάλλον που κατατέθηκε στο Τμήμα Περιβάλλοντος η οικιστική ανάπτυξη θα φέρει την ονομασία «GOLDENMILE». Το προτεινόμενο έργο αφορά την κατασκευή και λειτουργία δύο οικιστικών κτηρίων (9 και 4ων ορόφων) που αποτελούνται συνολικά από 34 διαμερίσματα, 53 χώρους στάθμευσης (4 χώρους για ΑμΕΑ) και εξωτερική κολυμβητική δεξαμενή.
Το κτήριο “BlockA” αποτελείται από 9 ορόφους (συνολικό ύψος 44,85 m) και περιλαμβάνει 26 διαμερίσματα (8 διαμερίσματα ενός υπνοδωματίου,8διαμερίσματα δυο υπνοδωματίων και 10διαμερίσματα τριών υπνοδωματίων), κήπο στην οροφή, χώρους αναμονής, καταστήματα και μηχανοστάσιο. Το κτήριο “BlockΒ” αποτελείται από 4 ορόφους (συνολικό ύψος 25,6 m) και περιλαμβάνει 8 διαμερίσματα τριών υπνοδωματίων.
Habitat

Δύο νέα πολυώροφα κτίρια οικιστικών διαμερισμάτων με την ονομασία Habitat ιδιοκτησίας της Quality Group στο δήμο Λάρνακας. Σύμφωνα με την περιβαλλοντική μελέτη τα κατασκευαστικά έργα θα ολοκληρωθούν σε 18 μήνες από την έναρξη τους, ενώ το κόστος υπολογίζεται στα €25 εκατ. Το κτήριο Α αποτελείται από 10 ορόφους συνολικού ύψους 41 μέτρων και το κτήριο Β αποτελείται από 12 ορόφους συνολικού ύψους 52 μέτρων.
Το συγκρότημα Α περιλαμβάνει συνολικά 34 διαμερίσματα και το συγκρότημα Β αποτελείται από 48 διαμερίσματα.
Best Western Marina

Εντεκαόροφο κτήριο οικιστικών διαμερισμάτων με την επωνυμία Best Western Marina στη Λάρνακα αναμένεται να παραδοθεί τον Οκτώβριο του 2020. Πρόκειται για project το οποίο με βάση τη μελέτη εκτίμησης επιπτώσεων στο περιβάλλον θα εφάπτεται της Λεωφόρου Αρχιεπισκόπου Μακαρίου Γ. Το έργο θα κατασκευαστεί σε τεμάχιο με εμβαδόν 759,000 τ.μ. και θα έχει δομήσιμο εμβαδόν περίπου 2,522 τετραγωνικών μέτρων. Το κόστος κατασκευής του έργου έχει εκτιμηθεί γύρω στα €10 εκατ. ενώ το κτήριο θα έχει ύψος 48 μέτρων. Στην οροφή του κτηρίου προτείνεται η δημιουργία πισίνας και μπαρ.
Platinum Tower

Ενώπιον του Τμήματος Περιβάλλοντος κατατέθηκε Μελέτη Εκτίμησης Επιπτώσεων στο Περιβάλλον που αφορά την κατασκευή και λειτουργία της ανάπτυξης «PlatinumPlaza» στον Άγιο Αθανάσιο, στην Λεμεσό. Η ανάπτυξη περιλαμβάνει ένα 12όροφο κτήριο με γραφεία, δημόσιο χώρο πρασίνου, εμπορικές χρήσεις, χώρους στάθμευσης και αποθήκευσης και δημόσιο πεζόδρομο. Οι κατασκευαστικές εργασίες του Έργου αναμένεται να ξεκινήσουν τέλη του 2019 και να διαπεραιωθούν μέχρι το 2022. Ο Κύριος του Έργου είναι η εταιρεία «5Q Development Ltd» και το κόστος κατασκευής του έργου εκτιμάται σε περίπου €6.000.000.
Το προτεινόμενο κτήριο, το οποίο θα εκτείνεται σε ύψος 120 μέτρων, περίπου, θα περιλαμβάνει 48 γραφειακές μονάδες, 4 εμπορικές μονάδες και κήπο οροφής.
Sunset Gardens

Ενώπιον του Τμήματος Περιβάλλοντος βρίσκεται η αίτηση για τη δημιουργία της νέας οικιστικής ανάπτυξης «Sunset Gardens» στη διοικητική περιοχή Τσερκέζοι (αλλιώς γνωστή και ως Τσερκέζ Τσιφλίκ), στη Λεμεσό. Το προτεινόμενο έργο ιδιοκτησίας της«Citrus Gardens Development LTD» αφορά περιφραγμένη οικιστική ανάπτυξη, η οποία θα είναι πλούσια σε εγκαταστάσεις. Συγκεκριμένα, θα αποτελείται από χαμηλές πολυκατοικίες με μέγιστο αριθμό ορόφων τους τέσσερις, οι οποίες θα περιλαμβάνουν συνολικά 310 διαμερίσματα, ενός, δύο και τριών υπνοδωματίων, που θα διαθέτουν εξωτερικό καλυμμένο χώρο στάθμευσης και θα έχουν σχεδιαστεί σύμφωνα με προδιαγραφές υψηλού επιπέδου.











